Auftrag Erweiterung am Campus Rheinfelden

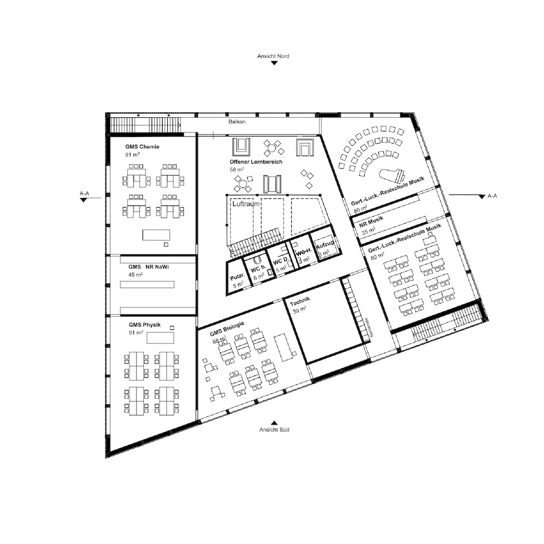
Die Stadt Rheinfelden hat uns mit der Planung eines Erweiterungsbaus in Holzbauweise für die gemeinsame Nutzung durch zwei Schulen und die Volkshochschule beauftragt. Im Vergabeverfahren konnte unser gemeinsam mit den Ingenieurbüros Wirth Haker für das Tragwerkskonzept, Stahl + Weiss für das Energiekonzept und Waldvogel für den Brandschutz erarbeiteter Beitrag das Auswahlgremium überzeugen.

Wir freuen uns auf die Bearbeitung dieses interessanten Projektes!

Zurück zur Übersicht