Gemeinschaftsschule Herrischried

Ergänzung der bestehenden Schulanlage durch einen Neubau

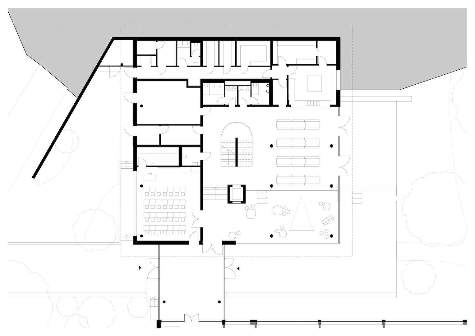
Es wurden sieben Fachräume mit Nebenräumen, drei Kurs- oder Gruppenräume, Freiarbeitsflächen, ein Verwaltungs- und Lehrerbereich und eine Mensa (72 Plätze) mit Küche und den dazugehörigen Nebenräumen für die Ausgabe von max. 300 frisch zubereiteten Essen pro Tag realisiert. Der dreigeschossige eigenständige Baukörper des Neubaus ist im Nordwesten des Bestandsgebäudes im Bereich des Hauptzugangs angeordnet. Die kompakte Bauform führt zu einer sehr wirtschaftlichen Lösung, die den Eingriff ins Gelände auf ein Minimum reduziert. Nur im Erdgeschoss sind der Bestandsbau und der Neubau mit einem transparenten, eingeschossigen Eingangsbau verbunden. Dieser dient gleichzeitig als wettergeschützte Pausenfläche. Im Neubau schließen sich direkt an diesen Übergang an zentraler Stelle der Aufenthaltsbereich und die Mensa an, die das neue Herz der Schulanlage bilden. Der seitlich angeordnete Musiksaal kann bei Veranstaltungen als Backstage-Bereich genutzt werden. Die weiteren Fachunterrichtsräume befinden sich im ersten und zweiten Obergeschoss. Diese sind mit kurzen Wegen um das von oben belichtete Zentrum angeordnet. In der offenen Mittelzone befinden sich in den Obergeschossen auf der Südseite die Freiarbeitsflächen.

Das Gebäude wurde wirtschaftlich optimiert als Hybridkonstruktion mit tragender Betonstruktur und nichttragenden Außenwänden in Holzständerbauweise errichtet. Die Fassadenverkleidung besteht aus einer sägerauen Schalung aus Douglasienholz, das aus der direkten Umgebung stammt.

  • Lage Herrischried, Landkreis Waldshut
  • Bauherr Gemeinde Herrischried
  • Fertigstellung 2022
  • Leistungsumfang Leistungsphasen 1 - 8
  • Mitarbeit Gero Heimann, Iulia Anghel, Manfred Nüßlein, Inmaculada Gil Esteban
  • Außenanlagen Bettina Roger Landschaftsarchitektur, Freiburg
  • Fotografie Yohan Zerdoun
    Innenaufnahmen mit Personen: Luca Bürger
  • Auszeichnungen Nominierung DAM-Preis 2024
  • Veröffentlichungen CRADLE Holzhybridbau
    Verlag: ff publishers GmbH; Hg.: Chris van Uffelen

    Architekturführer Deutschland 2024
    Verlag: Dom publishers; Hg.: Yorck Förster, Christina Gräwe, Peter Cachola Schmal

Zurück zur Übersicht